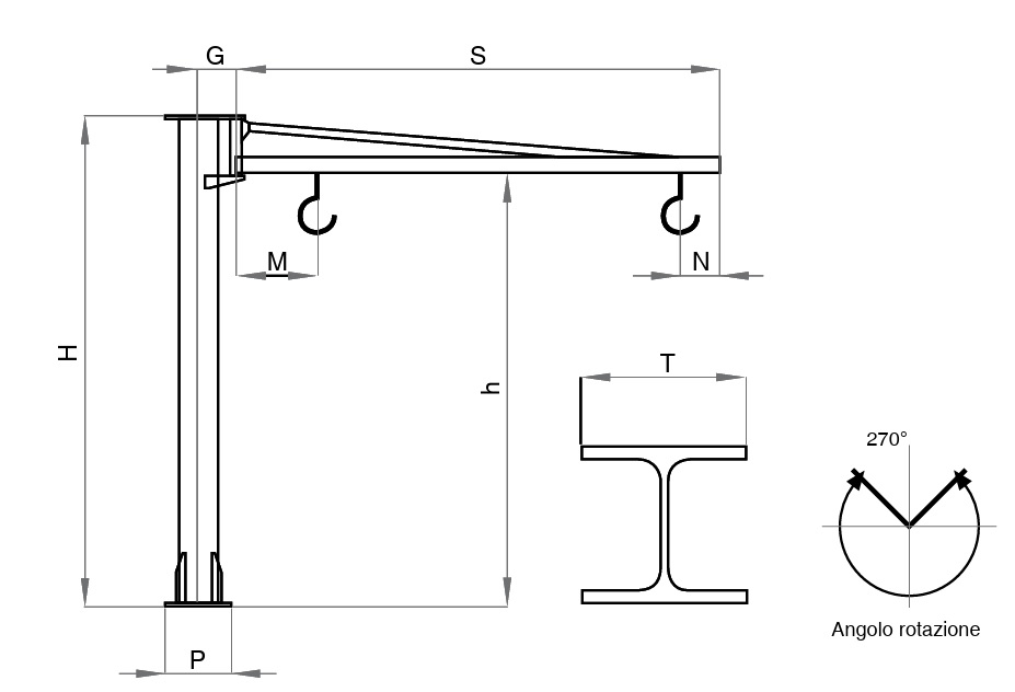
Stĺpový žeriav s C ramenom

Dostupné na objednávku

Katalógové číslo: CM2 Kategórie: ,