🏗️ Konzolový žeriav s C ramenom
Produkt CMM2 je robustné a flexibilné riešenie pre manipuláciu bremien v priemyselnom alebo výrobnom prostredí, kde je potrebné efektívne využiť priestor pri zachovaní spoľahlivosti a bezpečnosti.
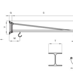
🔧 Technické parametre
-
Nosnosť: 125 kg / 250 kg / 500 kg / 1000 kg.
-
Dĺžka ramena (výložníka): 3 m / 4 m / 5 m / 6 m / 7 m / 8 m.
-
Rotačný mechanizmus: rameno otočné s guľkovými ložiskami pre plynulý pohyb.
-
Brzda: nastaviteľná pásová brzda – zabezpečuje zastavenie ramena v požadovanej polohe.
-
Elektrické rozvody: pripravené pre napájanie zdvíhacích zariadení.
-
Povrchová úprava: epoxidová farba – štandardné farby častí konštrukcie.
-
Certifikácia: Značenie CE podľa smernice Strojov 2006/42/CE.
🧱 Montáž a prevedenie
-
Rameno je určené pre kotvenie na stenu.
-
Konštrukcia vhodná pre vnútorné haly, dielne či výrobné prevádzky.
-
Varianty podľa nosnosti a dĺžky ramena umožňujú prispôsobiť konfiguráciu konkrétnemu pracovnému prostrediu.
✅ Výhody modelu CMM2
-
Veľká variabilita – výber nosnosti a dĺžky ramena umožňuje presné nastavenie podľa potreby.
-
Efektívne využitie priestoru – podporuje manipuláciu s bremenami v rôznych smeroch.
-
Plynulý a bezpečný pohyb – rotačný mechanizmus s ložiskami a brzda zabezpečujú stabilnú prevádzku.
-
Profesionálne prevedenie a certifikácia – zaručuje spoľahlivosť a dlhú životnosť.
🎯 Ideálne použitie
Tento model je vhodný pre:
-
dielenské pracoviská
-
haly výroby alebo montáže
-
prevádzky s potrebou manipulácie s bremenami – napr. kovovýroba, servisné linky
-
miesta, kde je obmedzený priestor alebo je dôležité flexibilné dosahovanie rôznych pozícií
V prípade záujmu nás neváhajte kontaktovať na 0903504117 alebo itys@itys.sk
Radi pre Vás prichystáme cenovú ponuku na akýkoľvek výber produktov.
Naše ďalšie stránky:
www.kamenarstvoitys.sk
www.platkovezlato.sk
www.gravirovanidokamene.cz
www.kogravirozas.hu








Recenzie
Nikto zatiaľ nepridal hodnotenie.